Detalles
La casa prefabricada móvil y extensible Bastone de 17×20 pies es una solución ideal para quienes buscan un alojamiento temporal o una oficina compacta y versátil. Equipada con baño integrado, ofrece comodidad y practicidad, además de ser fácilmente transportable, lo que la convierte en la opción perfecta para quienes necesitan una solución flexible y móvil. Su montaje rápido y estructura resistente la hacen adecuada para múltiples usos, tanto residenciales como industriales.
CARACTERÍSTICAS TÉCNICAS
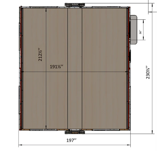
📏 Dimensiones externas:
Longitud: 5,84 m (19,16’)
Ancho: 5,34 m (17,52’)
Altura: 2,53 m (8,3’)
🏠 Espacio interior: 26,5 m² (285,14 ft²)📏 Altura interna: 2,27 m (7,45’)
🚪 Puertas:
Dimensiones de la puerta: 1,99 m x 1,0 m (6,53’ x 3,28’)
🪟 Ventanas:
Tamaños disponibles: 0,5 m x 0,69 m (1,64’ x 2,26’) y 0,8 m x 1,2 m (2,62’ x 3,94’)
⚖ Peso del producto: 2725 kg (5995 lbs)
🏗 Materiales:
Estructura: Acero resistente para mayor durabilidad
Paredes y techo: PSE (paneles aislantes)
Piso: Melamina y vinilo PVC
Tuberías: Entrada y salida en PPR (polipropileno random)
EQUIPAMIENTO Y FUNCIONALIDAD
🚽 Baño Integrado:
Inodoro
Ducha con cabezal
Lavabo con armario y espejo
💨 Ventilación: Ventilador extractor incluido para mantener el aire fresco⚡ Instalación rápida: Montaje sencillo, lista en pocas horas🏡 Diseño compacto: Espacio optimizado para mayor funcionalidad❄️ Aislamiento térmico: Materiales que garantizan confort en cualquier estación🏗 Estructura resistente: Diseñada para soportar condiciones climáticas adversas
VENTAJAS Y BENEFICIOS
✅ Completamente prefabricada: Se entrega lista para su uso con todas las instalaciones integradas✅ Versatilidad de uso: Ideal para viviendas temporales, oficinas, almacenes o espacios de alojamiento✅ Alta portabilidad: Fácil de transportar e instalar en diversas ubicaciones✅ Eficiencia energética: Aislamiento térmico que ayuda a reducir el consumo energético✅ Solución económica: Excelente relación calidad-precio
USOS RECOMENDADOS
🏠 Alojamientos temporales: Perfecta para campamentos, zonas de emergencia o estancias cortas🏢 Espacios de trabajo: Ideal para oficinas móviles o áreas operativas temporales📦 Almacenes portátiles: Perfecta para el almacenamiento temporal de materiales y equipos🏕 Infraestructuras de alojamiento: Adecuada para campings, parques o resorts
GARANTÍA Y SERVICIO POSTVENTA
📜 Garantía: 2 años en la estructura y sistemas principales☎ Soporte técnico: Asistencia disponible para instalación y mantenimiento🔧 Durabilidad garantizada: Diseñada para uso prolongado en diferentes entornos































No hay ninguna reseña todavía